Your privacy is important to us. This website uses cookies to enhance user experience and to analyze performance and traffic on our website. By using this website, you acknowledge the real-time collection, storage, use, and disclosure of information on your device or provided by you (such as mouse movements and clicks). We may disclose such information about your use of our website with our social media, advertising and analytics partners. Visit our Privacy Policy and California Privacy Disclosure for more information on such sharing.

Log In

Our Brands

Helpful Tools

Search

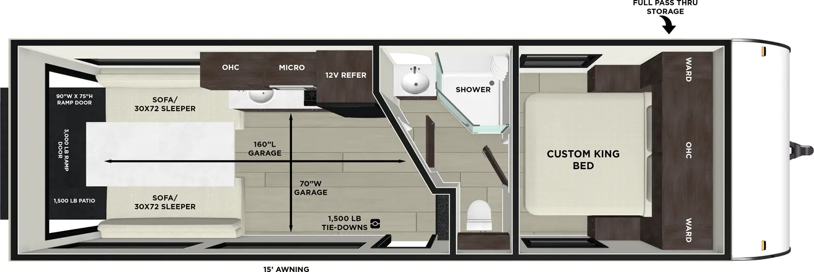
Explore 2026 MAX Series: Toy Haulers and Versatile Cargo Travel Trailers 260RTK Floorplan

The 260RTK front bedroom provides a queen bed with extra storage, while the adjacent bathroom gives you a large skylight shower and mirrored linen closet. The kitchen provides modern appliances, panoramic window, and faux stone accent wall with entertainment center. Taking the crew on the road? The flip-down sofas and removable dining table in the garage convert to a king bed. Plus, the ramp door doubles as a party patio. At just over 5,000 lb., this toy hauler is ready to roll and easy to tow.

Hitch Weight
835 lb.
UVW
5,438 lb.
CCC
4,197 lb.
Exterior Length
28' 6"
Exterior Height
10' 6"
Exterior Width
96"
Fresh Water
54 gal.
Gray Water
40 gal.
Black Water
40 gal.
Awning Size
15'
Hitch Weight
985 lb.
UVW
5,843 lb.
CCC
3,942 lb.
Exterior Length
28' 8"
Exterior Height
10' 6"
Exterior Width
96"
Fresh Water
54 gal.
Gray Water
40 gal.
Black Water
40 gal.
Awning Size
15'

260RTK Floorplan MAX Series: Toy Haulers and Versatile Cargo Travel Trailers Features & Options

    • Construction Advantages:
    • 5/8" Tongue & Groove Plywood Floor Decking
    • 2x3" Floor Structure Construction
    • Full Walk on Roof with SuperFlex Roof Membrane for Longevity w/ 5" Bowed Truss Roof Rafters
    • Powder Coated I-Beam Frame w/ Camber for Stiffer Structural Support
    • Nitrogen Filled Tires
    • Garage Chassis w/ Full Height Steel Floor Supports Every 24”
    • 2" Wall Construction, 16" (or less) on Center
    • Fiberglass Insulation Throughout
    • Aerodynamic Front Profile for Easy Towing
    • .040 Smooth Aluminum Front Profile for Added Rigidity
    • Diamond Plate Rock Guard on Front for Protection
    • Color Coded Water Lines
    • Seamless Holding Tanks
    • (2) 20lb Propane Tanks for Extended Camping
    • Garage Standard Features
    • MAX 84" Interior Height for Toys of All Sizes - Especially Newer Golf Carts and Side by Sides
    • MAX Width (Varies by Model) - Specifically Designed to Get You Every Inch of Space for Larger Toys
    • MAX Ramp Loading Convenience: Easy Open Patio Kit for Full Ramp Usage when Loading Toys
    • E-Z Ramp Approach Angle (Average 16°) for Lowriding Toys
    • 1,500LB Tie Downs for Securing Gear, Strategically Placed Throughout Each Floorplan
    • 50% Thicker Floor Structure That Normal Travel Trailers to Accept Heavier Loads
    • 2x Chassis Support Throughout Garage Area for Gear
    • Carpet Free and Floor Ductwork Free in All Garage and Gear Areas for Easy Cleanup
    • Upgraded Full Blackout Window Coverings to Keep Prying Eyes at Bay When Storing Precious Cargo (Varies by Model)
    • Removable Entrance Step to Get Every Last Inch Of Storage (Varies by Model)
    • Interior Standard Features
    • 4 - 6 USB Ports w/ USB A and USB C Compatibility for Phone and Tablet Charging
    • Fully Independent Air Conditioning Ductwork for Focused Cooling When Needed
    • Large Shower Pans for Adults (No Bathtubs)
    • 30-50 Amp Service w/ Auto Detect Converter (Works with Multiple Battery Types). Amperage varies by model size.
    • TV Mounting Areas w/ Mount Installed (Varies by Model)
    • Water Heater By-Pass
    • 20K BTU Furnace Ducted Through Walls and Cabinets, No Floor Ducting
    • Kitchen Standard Features
    • MAX Kitchen Storage - Nearly 50% More Cabinetry Than Others Thanks to Space Saving Appliances and Clever Designs
    • 3-in-1 Cooker w/ Convection Oven, Microwave, 3 Burner Gas Cooktop
    • 10CuFt 12V Refrigerator for Extended Camping
    • Residential High Rise Kitchen Faucet and Deep Kitchen Sink
    • Slim Range Vent Hood over Cooktop (Varies by Model)
    • Seamless Countertops with Waterproof Membrane for Longevity
    • Exterior Standard Features
    • Oversized Entrance Doors - 30" Wide Instead of 26" - 15% Larger Than Normal
    • Detachable Power Cord
    • Oversized F/G/B Holding Tanks for Extended Camping
    • Dual Group 27 Battery Trays for Extended Camping Power
    • Battery Disconnect to Turn Entire Unit Off When Done Camping
    • Extra Large Baggage Doors for More Gear Storage
    • Backup Camera Ready - Just Plug and Play
    • Largest in Class Opening Panoramic Windows
    • JBL Interior/Exterior Sound System
    • 7-Way Plug and Chain Holder
    • Dedicated Cable TV Hookup on Exterior of Coach
    • 60,000BTU Extra Large On Demand Hot Water Heater
    • Omni Directional Digital TV Antenna
    • Side Mounted Solar Inlet on Camp Side
    • Best-In-Class Package:
    • Patio Deck with Railing
    • Exterior LED Light Strip Under Awning
    • Backup Camera Prep
    • Power Awning w/ Adjustable Legs
    • USB Charging Outlet
    • Bluetooth Stereo
    • Upgraded Appliance Package w/ Convection Oven
    • Friction Hinge Entrance Door
    • EZ Entrance: Solid Step + XL Folding Grab Assist Handle
    • Deep Single Basin Kitchen Sink
    • Upgraded Hypoallergenic Mattress
    • Camp Comfort Package
    • Outside Hot/Cold Shower
    • Slim Range Vent Hood over Cooktop
    • Residue Resistant Linoleum (Added Durability Against Oil, Grease, Gas)
    • Foot Flush Toilet
    • Power Vent Fans to Exhaust Heat, Smells, and Humidity
    • LED Interior Lighting for Low Power Draw and Brighter Camping
    • LP Quick Connect on Exterior of Unit - Perfect for Griddles, Grills, and More
    • Options:
    • Stow N Load Seating and Sleeping System for MAX Sleeping Capacity in Garage (Select Models Only)
    • Extended Power Package: Roof Mounted 200W Solar Panel, and 30 Amp Controller (Optional on Metal Exterior Units Only)
    • Power Tongue Jacks (Optional on Metal Exterior Units Only)
    • Max Package Features:
    • MAX Storage (84" interior celiing height, no wheel wells in cargo area)
    • MAX Ramp Door and Patio
    • MAX 15K Ducted Air Conditioner (in place of 13.5K standard AC)
    • MAX Cold Weather Protection (12V Direct Heated Tank Pads on ALL 3 Tanks)
    • MAX Extreme Weather Insulation (Blown Fiberglass Insulation + Radiant Foil)
    • Platinum Package (Option)
    • Smooth Fiberglass Exterior Walls
    • Fold Down Solid Step at Main Entry
    • Extended Power Package (200W Solar Panel, 30 Amp Controller)
    • Power Tongue Jack (Adds approx 150 lbs)
    • Premier Partner Package Features (Mandatory)
    • Tinted Exterior Windows for Privacy
    • 60,000 Tankless on Demand Hot Water Heater
    • Extra Large Black Glass 12V Refrigerator
    • Underbelly Accessibelly System for Climate and Debris Protection
    • Options:
    • PROP TV FOR DISPLAY ONLY; NOT INCLUDED